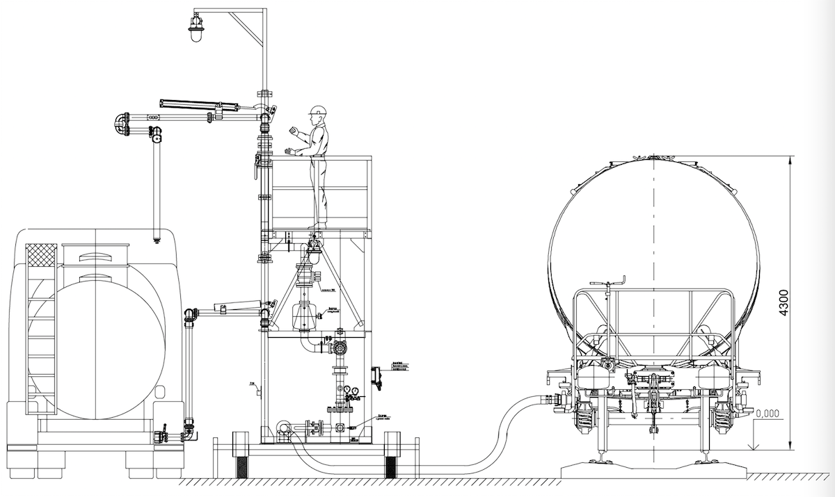
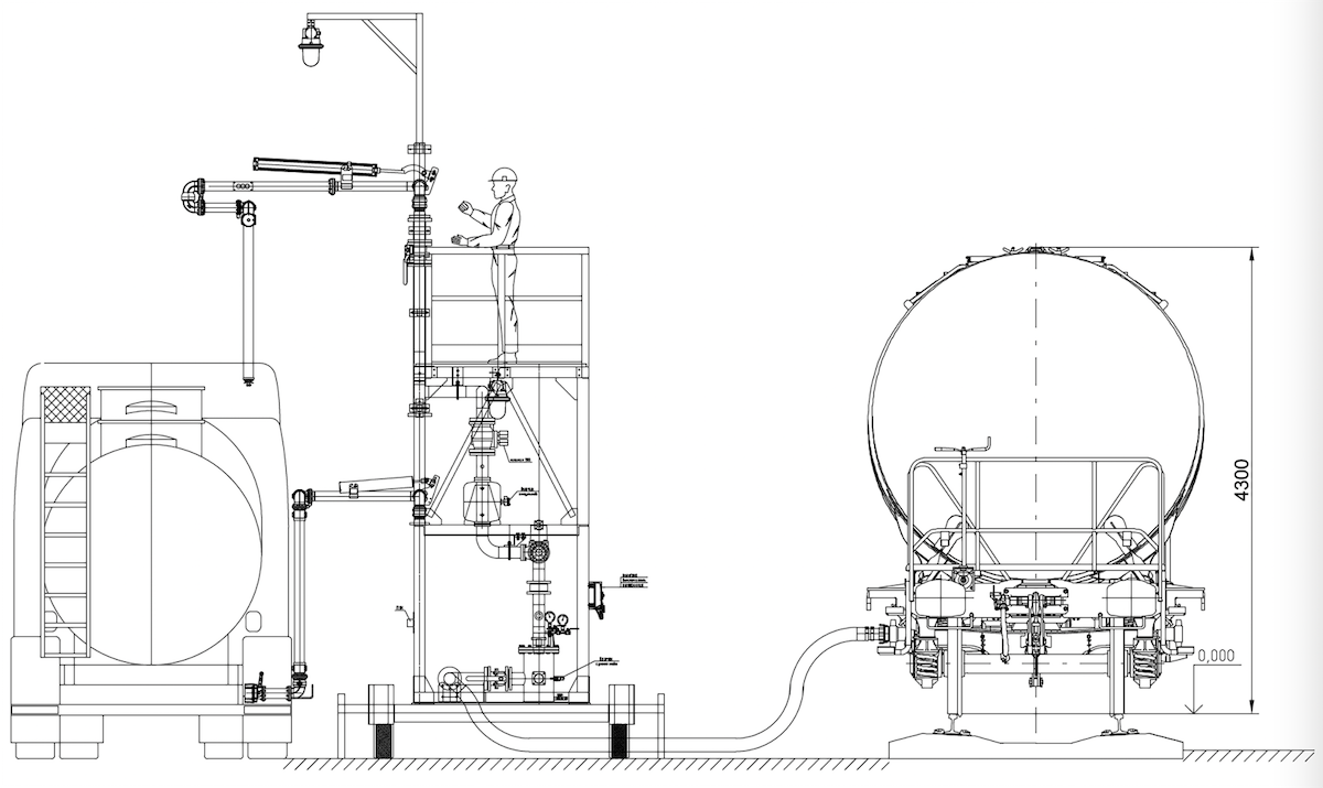
Основні технічні вимоги оснащення пунктів безпечного переливу світлих нафтопродуктів мають враховувати властивості вибухової рідини, повідомляють фахівці інженерної компанії в статті «Як організувати безпечний перелив світлих нафтопродуктів».
Наявність в автоцистерні вибухонебезпечної концентрації пароповітряної суміші, є головною причиною втрат під час переливу нафтопродуктів, розповідає головний інженер компанії «АКІМ» Юрій Криворот.
«Наприклад, у Німеччині всі моторні палива виготовляються з антистатичними присадками, тому вони допускають великі швидкості перекачування. Проте наша компанія підготувала низку заходів для вітчизняних власників автоцистерн, як уникнути утворення небезпечної концентрації парів, або як вірно обладнати прилад заземлення чи системами переливу», - ділиться досвідом Юрій Криворот.
Детальна інформація та відеоогляд щодо організації пунктів переливу в розділі «Статті» на Головній сторінці сайту «НафтоРинок».






